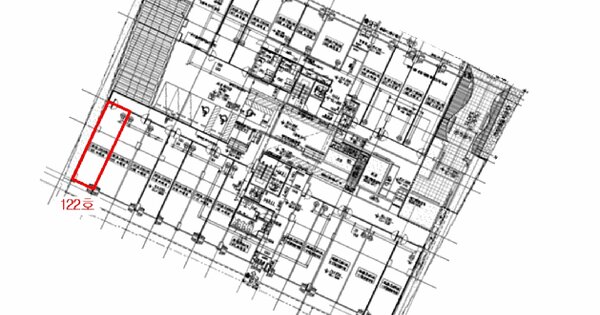
나이스옥션 법원경매 부천 2026타경57 [1] 경기도 김포시 운양동 1307-5 에이치씨티 1층 122호 미지정 경매
물건 개요
나이스옥션 법원경매 부천 2026타경57 [1] 경기도 김포시 운양동 1307-5 에이치씨티 1층 122호 미지정 경매
- 사건번호: 2026타경57
- 주소: 경기도 김포시 운양동 1307-5 에이치씨티 1층 122호
- 용도: 미지정
부천지원 경매3계 2026타경57 | 소재지: 경기도 김포시 운양동 1307-5 에이치씨티 1층 122호 | 감정가: 0원 | 최저가: 0원 | 용도: 미지정
법원 정보
부천지원 경매3계