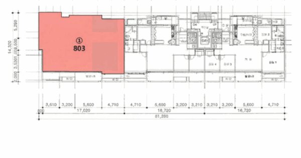
나이스옥션 법원경매 광주 2026타경30478 [1] 광주광역시 서구 마륵동 1 상무자이아파트 105동 8층803호 미지정 경매
물건 개요
나이스옥션 법원경매 광주 2026타경30478 [1] 광주광역시 서구 마륵동 1 상무자이아파트 105동 8층803호 미지정 경매
- 사건번호: 2026타경30478
- 주소: 광주광역시 서구 마륵동 1 상무자이아파트 105동 8층803호
- 용도: 미지정
광주지방법원 경매7계 2026타경30478 | 소재지: 광주광역시 서구 마륵동 1 상무자이아파트 105동 8층803호 | 감정가: 0원 | 최저가: 0원 | 용도: 미지정
법원 정보
광주지방법원 경매7계