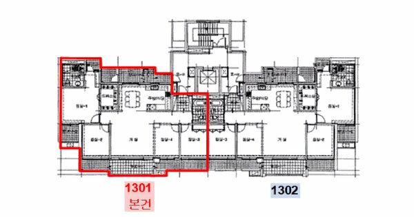
나이스옥션 법원경매 천안 2026타경10229 [1] 충청남도 아산시 용화동 1623 용화마을신도브래뉴 102동 13층1301호 미지정 경매
물건 개요
나이스옥션 법원경매 천안 2026타경10229 [1] 충청남도 아산시 용화동 1623 용화마을신도브래뉴 102동 13층1301호 미지정 경매
- 사건번호: 2026타경10229
- 주소: 충청남도 아산시 용화동 1623 용화마을신도브래뉴 102동 13층1301호
- 용도: 미지정
천안지원 경매2계 2026타경10229 | 소재지: 충청남도 아산시 용화동 1623 용화마을신도브래뉴 102동 13층1301호 | 감정가: 0원 | 최저가: 0원 | 용도: 미지정
법원 정보
천안지원 경매2계