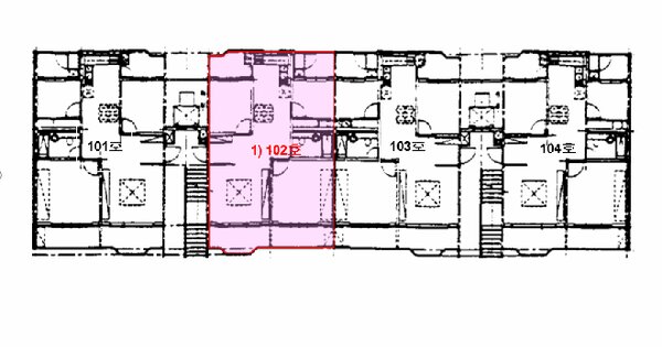
나이스옥션 법원경매 청주 2026타경50159 [1] 충청북도 청주시 서원구 모충동 492 금호타운 104동 1층102호 미지정 경매
물건 개요
나이스옥션 법원경매 청주 2026타경50159 [1] 충청북도 청주시 서원구 모충동 492 금호타운 104동 1층102호 미지정 경매
- 사건번호: 2026타경50159
- 주소: 충청북도 청주시 서원구 모충동 492 금호타운 104동 1층102호
- 용도: 미지정
청주지방법원 경매1계 2026타경50159 | 소재지: 충청북도 청주시 서원구 모충동 492 금호타운 104동 1층102호 | 감정가: 0원 | 최저가: 0원 | 용도: 미지정
법원 정보
청주지방법원 경매1계