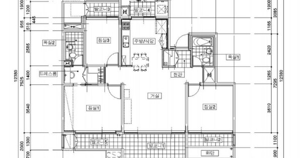
나이스옥션 법원경매 수원 2026타경50214 [1] 경기도 화성시 안녕동 212 아름마을 신한미지엔아파트 102동 6층602호 미지정 경매
물건 개요
나이스옥션 법원경매 수원 2026타경50214 [1] 경기도 화성시 안녕동 212 아름마을 신한미지엔아파트 102동 6층602호 미지정 경매
- 사건번호: 2026타경50214
- 주소: 경기도 화성시 안녕동 212 아름마을 신한미지엔아파트 102동 6층602호
- 용도: 미지정
수원지방법원 경매20계 2026타경50214 | 소재지: 경기도 화성시 안녕동 212 아름마을 신한미지엔아파트 102동 6층602호 | 감정가: 0원 | 최저가: 0원 | 용도: 미지정
법원 정보
수원지방법원 경매20계