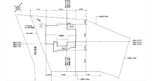
나이스옥션 법원경매 공주 2025타경20426 [1] 충청남도 공주시 반포면 마암리 499-2 미지정 경매
물건 개요
나이스옥션 법원경매 공주 2025타경20426 [1] 충청남도 공주시 반포면 마암리 499-2 미지정 경매
- 사건번호: 2025타경20426
- 주소: 충청남도 공주시 반포면 마암리 499-2
- 용도: 미지정
공주지원 경매1계 2025타경20426 | 소재지: 충청남도 공주시 반포면 마암리 499-2 | 감정가: 0원 | 최저가: 0원 | 용도: 미지정
법원 정보
공주지원 경매1계